< Back to available properties

Previous Slide Next Slide
Play / Pause Button Current State = Playing Slide 1 Slide 2 Slide 3 Slide 4 Slide 5 Slide 6 Slide 7 Current Active Slide = 1
£171.33 per Week
Available Now

2 Pickthorn Court
TF2 6TG

Housing for over 55s

Apartment

2 bedroom

Subject to Aprils rent increase.

Added on 10/04/2026

About the property

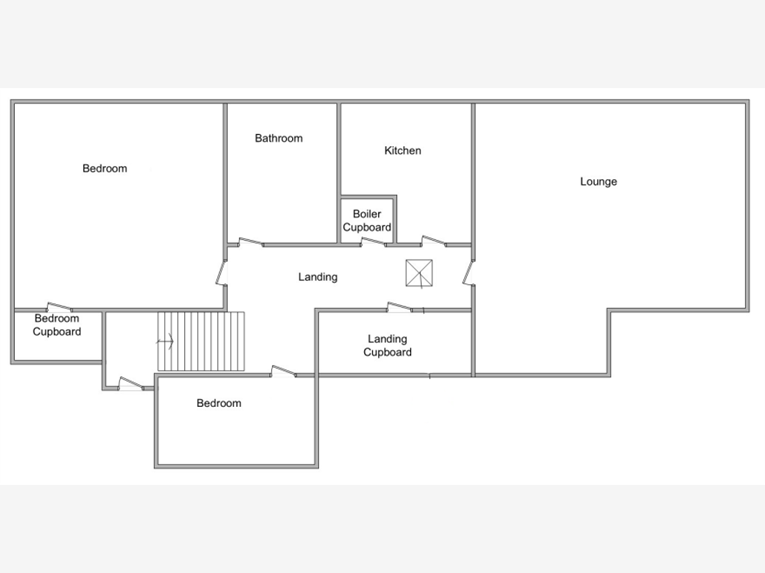
  • Charming 2 bedroom, first floor apartment at our over 55 scheme at Pickthorn Court.
  • Communal facilities are available; Parking; Gardens; Laundry; Activities Space.
  • This property comprises of a hallway, living room, kitchen, 2 bedrooms and a bathroom with a walk in shower.
  • Suitable for up to 3 adults over 55.
  • Not suitable for children.
  • Not suitable for pets.

Application criteria

  • You need to meet the age criteria for our Retirement Living homes - over 55 years for apartments and over 65 years for bungalows.
  • You will need a bank account to pay your rent from.
  • You need to have no rent or mortgage arrears or legal action by a previous landlord.
  • All household members need to be a British citizen, EEA or Swiss National.
  • This home will not be available to purchase under the 'Right to Acquire'